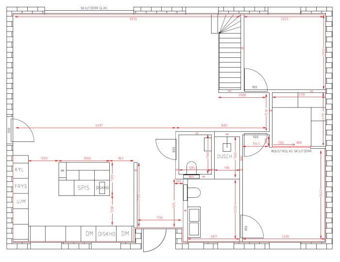
Jag håller på att planera en dusch och behöver ert råd om hur jag ska designa min duschnisch. Jag har en nisch med måtten 996x1740 mm, och jag kommer in på kortsidan (996 mm). Min fråga är om jag ska placera duschen på:
Alternativ A Dusch på Kortväggen och nisch i väggen på långsidan.
Alternativ B Dusch på långväggen och nisch i väggen på kortsidan
Jag har sänkt måttet till 1660mm på min ritning med att göra väggen 200mm på kortsidan pga jag tyckte det var för djupt.
Det är svårt att ta beslut när man inte ser det i verkligheten.
Kom gärna med tips på hur ni hade designat duschen och om ni hade placerat nisch i väggarna också.
Duschen är en inbyggd:
Grohe Grohtherm Cube Duschet, som jag redan köpt.
Alternativ A Dusch på Kortväggen och nisch i väggen på långsidan.
Inloggade ser högupplösta bilder
Logga in
Skapa konto
Gratis och tar endast 30 sekunder
Alternativ B Dusch på långväggen och nisch i väggen på kortsidan
Inloggade ser högupplösta bilder
Logga in
Skapa konto
Gratis och tar endast 30 sekunder
Jag har sänkt måttet till 1660mm på min ritning med att göra väggen 200mm på kortsidan pga jag tyckte det var för djupt.
Det är svårt att ta beslut när man inte ser det i verkligheten.
Kom gärna med tips på hur ni hade designat duschen och om ni hade placerat nisch i väggarna också.
Duschen är en inbyggd:
Grohe Grohtherm Cube Duschet, som jag redan köpt.
Redigerat:
Vår dusch är 80 x 100 cm med duschblandaren på kortsidan och ingången på den andra kortsidan, täckt med duschdörr. Det har känts bra. Det blir blött kanske 30 cm längst ner på ingångsdörren.
Om något bygglov är inblandat eller om man vill göra badrummet tillgänglighetsanpassat så ska duschblandaren vara åtkomlig för en assistent som står utanför duschen, dvs. på långsidan.
Om något bygglov är inblandat eller om man vill göra badrummet tillgänglighetsanpassat så ska duschblandaren vara åtkomlig för en assistent som står utanför duschen, dvs. på långsidan.
Jag skulle försökt undvika alla lösningar där man måste stå "i" duschen när man slår på vattnet. Är mer lyckat om man kan nå blandaren från sidan. Gäller i ännu högre grad med alla former av regnduschar.R Rooolle skrev:Jag håller på att planera en dusch och behöver ert råd om hur jag ska designa min duschnisch. Jag har en nisch med måtten 996x1740 mm, och jag kommer in på kortsidan (996 mm). Min fråga är om jag ska placera duschen på:
Alternativ A Dusch på Kortväggen och nisch i väggen på långsidan.
[bild]
Alternativ B Dusch på långväggen och nisch i väggen på kortsidan
[bild]
Jag har sänkt måttet till 1660mm på min ritning med att göra väggen 200mm på kortsidan pga jag tyckte det var för djupt.
Det är svårt att ta beslut när man inte ser det i verkligheten.
Kom gärna med tips på hur ni hade designat duschen och om ni hade placerat nisch i väggarna också.
Duschen är en inbyggd:
Grohe Grohtherm Cube Duschet, som jag redan köpt.
Det blir något i den stilen; då kan man nå blandaren från sidan. Jag funderade på att flytta den längre fram mot ingången, men det ser inte proportionerligt ut. Med den här placeringen kan man ändå sträcka sig in och vrida på blandaren utan att få vatten på sig.A Arga ingenjörn skrev:
Inloggade ser högupplösta bilder
Logga in
Skapa konto
Gratis och tar endast 30 sekunder
Hade kört alternativ B, pga då sprutar det inte rakt ut ur duschen på golvet. + som någon skrev att man kan starta duschen utan att få sig en kalldusch på köpet.
Klicka här för att svara
Liknande trådar
-
Hjälp med inkoppling av dubbel strömbrytare (trappkoppling, 5 kablar)
El -
Ber om hjälp inför beslut om nytt uterum
Utbyggnad och tillbyggnad -
Organisation som hjälper privatpersoner med felaktiga myndighetsbeslut ?
Juridik -
Hjälp med beslutsångest om asfaltering
Trädgård allmänt -
Hjälp med beslut om plast eller inte?
Grund & Markarbeten
